Bioliff Biopure Compact is a simple and economic solution for the treatment of sewage and waste water in small scale domestic applications and much more effective than a conventional septic tank. Using the established Sequential Batch Reactor principle the units utilise an aerobic biological
process whereby beneficial bacteria and microorganisms consume the waste using oxygen as a catalyst. Treatment involves a four stage cycle including:-
Filling - Waste flows continuously into the tank
Aeration - Air is pumped into the wastewater where aerobic bacteria, catalysed by diffused air and mixing, ensures full treatment is achieved and forms an activated sludge
Settlement - Activated sludge settles leaving clear water at the tank's upper level
Discharge - Treated clean water is discharged by the air pump creating air bubbles in the outlet pipes
The integral unit is supplied complete with:-
- A heavy duty round tank constructed from 8mm Polypropylene plastic with integral inlet, outlet and an inspection cover that is available with 250, 500 and 750mm upstands to suit site requirements
- Near silent energy efficient air pump with twin outlets automatically switched for separate cycles and an integral controller and alarm
- Fine bubble membrane diffuser ensuring efficient oxygen transfer and mixing
- On site aeration sludge digestion with no need for exhausters
Bioliff Biopure Compact is particularly versatile and easy to install requiring only limited excavation, backfill and connections. It provides effective and efficient treatment and produces high quality effluent that fulfils regulatory standards and is suitable for discharge to the environment or water reuse applications such as irrigation.
| Model |
6PE |
10PE |
| Population Equivalent (PE) |
6 |
10 |
| Flow (m/day) |
0.9 |
1.5 |
| Organic Loading (kg/BOD5/day) |
0.36 |
0.6 |
| Nitrogen Loading (kg/NH/day) |
0.05 |
0.1 |
| Tank Dimensions - Diameter x Height (m) |
1.6x2.1 |
2x2.1 |
| Tank Volume (m) |
3.3 |
5.2 |
| Installed Power (Watts) |
58 |
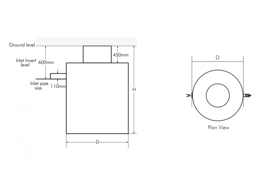
| Inlet |
Invert level (mm) |
600 |
| Pipe Size (mm) |
110 |
* The design and layout is very flexible. For alternative layouts, smaller footprints, or different depths please enquire.
Biopure Purification results:
BOD: <30mg/l
COD: <50mg/l*
TSS: <30mg/l
TN: <20mg/l
* COD results are dependent on the proportion of non-biodegradable soluble COD in wastewater. If the proportion is too high, then further physio-chemical processes may be required.