
St. Andrew's Turi, a preparatory and secondary school in central Kenya with a student population of approximately 600 students, approached D&S to conduct a detailed water audit on their existing water supply and water treatment system.

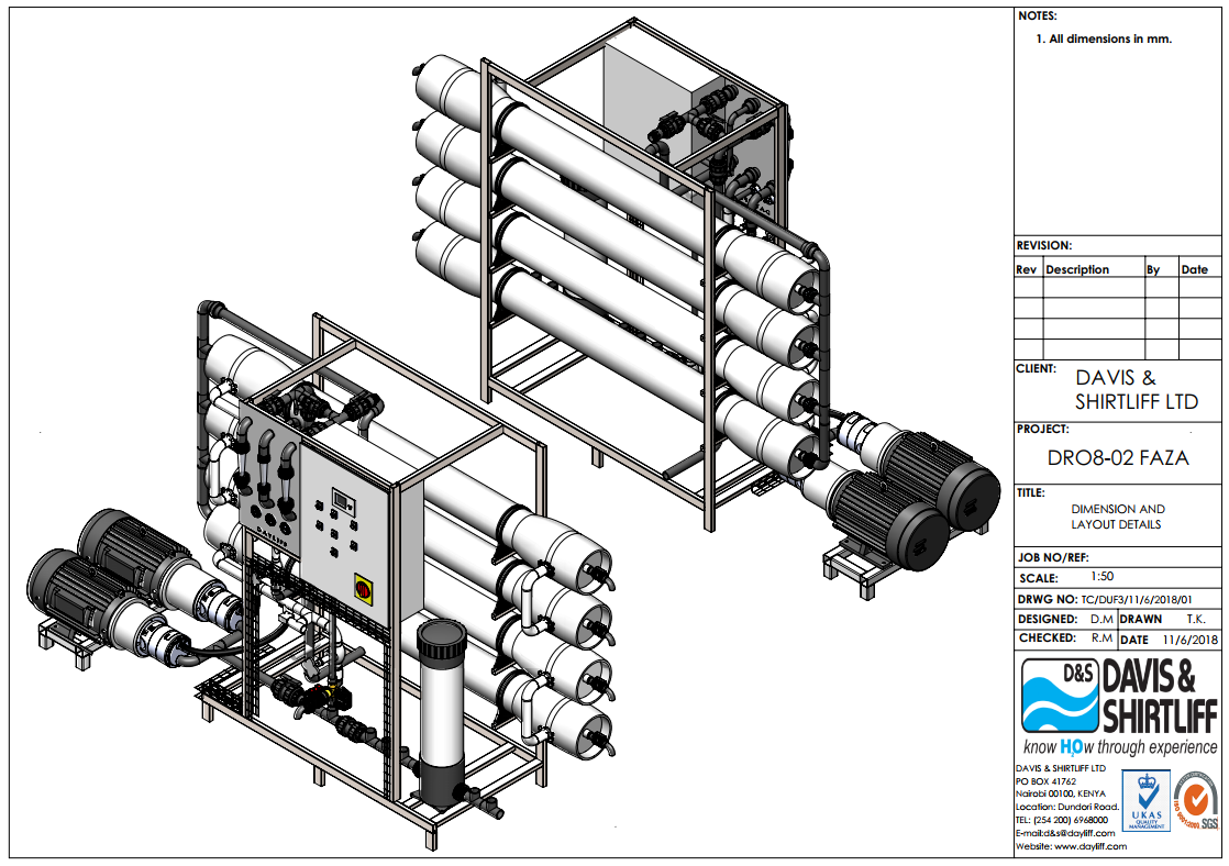
D&S recently undertook a project to supply a 5m3/hr Dayliff Seawater Reverse Osmosis (SDRO) plant to the Faza island in Lamu. The RO plant will be used to treat seawater for use in by the Faza community.
The project was designed to treat raw water from Lake Naivasha to meet the standards for domestic use and utilization in Olkaria Power Station. The project was spearheaded by D&S Water treatment Department who undertook the design while D&S Engineering was involved in the assembly of the 30m³/hr Dayliff WP Plant. WP plants are highly robust systems for the removal of suspended solids and disinfection from disease causing bacteria and viruses. The facility has been using this plant for removal of color, organic molecules, turbidity, bacteria and viruses, providing clean potable water for consumption

The project was designed to provide a treatment solution for spring water to be supplied for consumption and distribution. The project was spearheaded by D&S Naivasha in collaboration with the water treatment department.

D&S undertook a project to supply a Reverse Osmosis (RO) plant i.e. DRO8/4 for use in supply treated water to the UDV/EABL spirit plant at an average rate of 15000 litres per hour. The recovery of the plant was designed at 70% recovery. (Permeate i.e. treated water to the feed water ratio).

Dembe Trading Enterprises located on Jinja road at the outskirts of Kampala, have four manufacturing factories (ice cream, potato wafers (Indian Kurkure), candles and Dairy products. Due to the stringent regulations requiring the treatment of effluent waste water before discharge, Davis & Shirtliff was approached to provide a solution for treating the waste water from their factories to permissible levels that comply with regulation.

Davis & Shirtliff was approached by St. Francis Community Hospital, located in Kasarani Nairobi, to design and install a water treatment plant to treat their borehole water for potable use within their community.
Page 6 of 8